レジディア水道橋
東京都千代田区神田三崎町3丁目 / 水道橋駅
伊藤忠グループが手掛ける賃貸マンションシリーズ。
住宅を意味する「Residence(レジデンス)」と理想郷を意味する「Arcadia(アルカディア)」を重ね合わせた造語でレジディア。
オフィスビルや商店、大学などの教育施設も多い千代田区神田三崎町に位置する「レジディア水道橋」です。
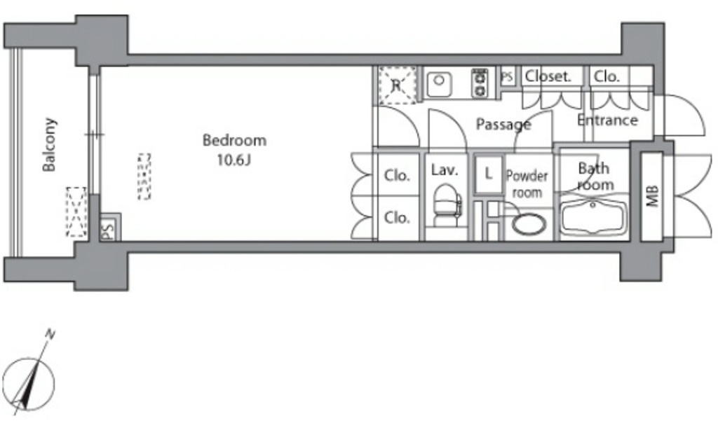
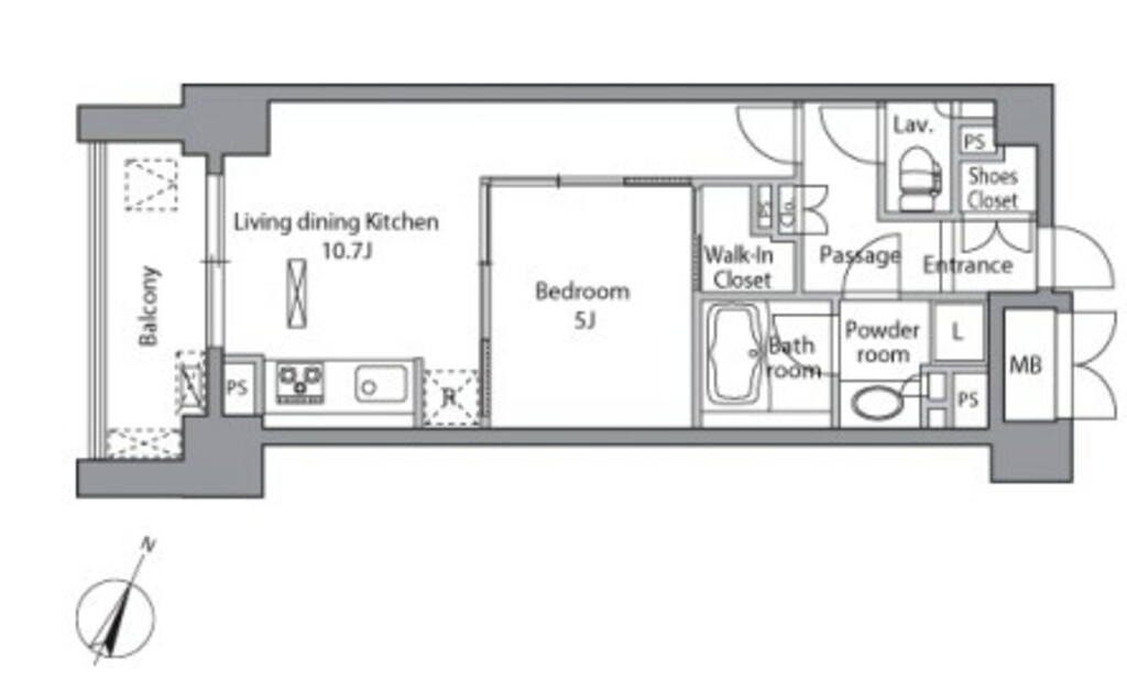
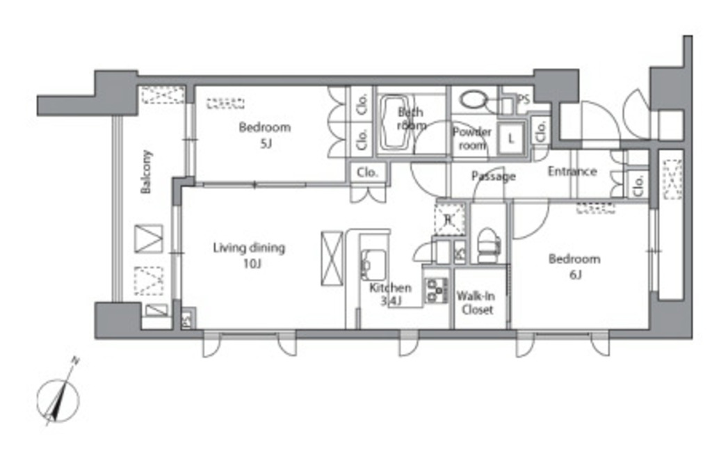
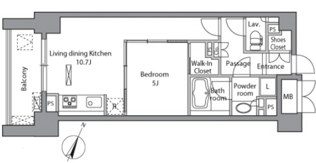
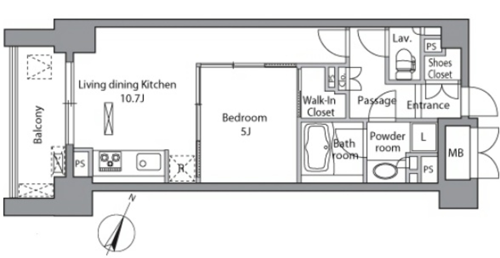
地上14階建て地下1階の建物には1K~2LDKまでの間取りがあり、ペット飼育が相談可能(種類や頭数等の制限あり)
オートロックや宅配BOXの完備はもちろん、内廊下設計でプライバシーにも配慮された作りです。
近隣には東京ドームやスパラクーア、小石川後楽園があり娯楽や趣味も楽しめる立地でありながら、JRはもちろん都営三田線の水道橋駅やも徒歩圏内なので、ビジネスの主要地「大手町」駅にもダイレクトアクセス。
都心部で働くビジネスマンに利便性と寛ぎを与える人気の賃貸マンションです。
物件概要
- 住所
- 東京都千代田区神田三崎町3丁目2-6
- 最寄駅
- JR総武線 水道橋駅 徒歩5分
東京メトロ東西線 九段下駅 徒歩7分
東京メトロ半蔵門線 神保町駅 徒歩7分 - 階数
- 地上14階 地下1階建
- 構造
- 鉄筋コンクリート(RC)
- 総戸数
- - 戸
- 駐車場
- - 賃料:- 円/月
- 竣工
- 2004年12月
- 敷地権利
- -
- 施工業者
- 分譲会社
- 管理会社
- 建物設備・施設
- 2駅利用可、2沿線利用可、3駅以上利用可、3沿線以上利用可、駅徒歩5分以内、駅徒歩10分以内、エレベーター、24時間ゴミ出し可、宅配ボックス、敷地内ごみ置き場、駐輪場、オートロック、防犯カメラ、BS、光ファイバー、ペット相談
- 通学区域小学校
- 富士見小学校(約670m)
物件設備
- ペット可
- 楽器可
- スポーツジム
- 駐車場
- 24時間管理
- オートロック
- 宅配ボックス
- コンシェルジュ
- ラウンジ
- 耐震・免震
- 建物
- 2駅利用可、2沿線利用可、3駅以上利用可、3沿線以上利用可、駅徒歩5分以内、駅徒歩10分以内、エレベーター、24時間ゴミ出し可、宅配ボックス、敷地内ごみ置き場、駐輪場
- セキュリティ
- オートロック、防犯カメラ
- 設備
- BS、光ファイバー
- その他の特徴
- ペット相談
- 備考
※駐輪場・バイク置き場・駐車場の空き状況についてはお問い合わせください。
※ペット飼育やSOHO・楽器利用の可否に関しては、建物の管理規約で可能になっていても、お部屋の所有者様によって禁止の場合もございますのでご注意下さい。
マップ
周辺施設

スーパーマーケット Santoku

ザ・ダイソー 神田神保町すずらん通り店

セブンイレブン千代田区三崎町2丁目店

啓文堂書店九段下店

こころとからだの元気プラザ

九段クリニック

東京歯科大学水道橋病院

マルマツ薬局

三井住友銀行 水道橋出張所

神田三崎町郵便局
新着情報NEWS & TOPICS
- 2025.12.12お知らせ
【本郷三丁目駅徒歩4分!ルフォンプログレ本郷三丁目の賃貸募集開始しました!】本郷三丁目駅徒歩 徒歩4分 ...
- 2025.11.04お知らせ
【広尾駅徒歩8分!アクシア広尾1LDKの賃貸募集開始しました!】広尾駅徒歩 徒歩8分 住環境良好の分譲マ...
- 2025.08.12お知らせ
【夏季休業のお知らせ】平素は格別のお引き立てを賜り厚く御礼申し上げます。 弊社のGWの休業日につきまし...
- 2025.07.22お知らせ
【新宿の不動産売却に強い会社とは?】新宿で不動産売却を依頼するならどこにお願いすればいいの?の疑問に対し...
- 2025.07.16お知らせ
【人気の管理物件募集のご案内】水道橋駅 徒歩4分 2013年04月完成のマンション ステージファースト...










