パークハウス東中野リヴゴーシュ / 4階 419 1LDK
Park House Higashinakano
東京都中野区東中野5丁目 / 落合駅
ペット可
成約済
- 賃料
- -
- 管理費 / 共益費
- - / -
- 専有面積
- 45.09m2
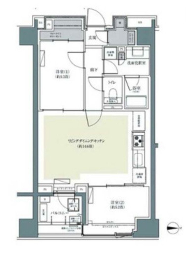
- 間取り
- 1LDK
- 方角
- 西
- 敷金
- -
- 礼金
- -
- 権利金
- -
部屋情報
賃貸
情報更新日:2025年04月18日 次回更新予定日:2025年05月02日
- 階数
- 4階
- 間取り / 向き
- 1LDK / 西
- 専有面積
- 45.09㎡ (13.7坪)
- 間取り詳細
- LDK12.2洋室6.1
- 敷金 / 礼金
- -
- 賃料
- -
- 管理費 / 共益費
- - / -
- 敷引 / 償却
- - / -
- 契約形態
- 普通借家
- 保証金 / 権利金
- - / -
- 契約期間(期日)
- 2年
- 敷金積み増し
- -
- 更新料
- -
- 取引形態
- 仲介
- 現況
- -
- 入居時期
- -
- 保証会社
- 必加入 初回保証料/月額総賃料の40% 2年目以降8千円/年
- その他月額費用
- -
- その他初期費用
- -
- 備考
- -
建物情報
- 住所
- 東京都中野区東中野5丁目22-14
- 最寄駅
- 東京メトロ東西線 落合駅 徒歩7分
JR総武線 東中野駅 徒歩9分
西武新宿線 中井駅 徒歩13分 - 階数
- 地上9階 地下1階建
- 構造
- 鉄筋コンクリート(RC)
- 総戸数
- 136 戸
- 駐車場
- 空有 賃料:30,250 円/月
- 竣工
- 2011年12月
- 敷地権利
- -
- 施工業者
- 東亜建設工業株式会社
- 分譲会社
- 三菱地所株式会社
- 管理会社
- 建物設備・施設
- 閑静な住宅地、外壁タイル張り、分譲賃貸、エレベーター、24時間ゴミ出し可、宅配ボックス、敷地内ごみ置き場、駐輪場、オートロック、BS、光ファイバー
- 通学区域小学校
- 落合第二小学校(約410m)
物件設備
- ペット可
- 楽器可
- スポーツジム
- 駐車場
- 24時間管理
- オートロック
- 宅配ボックス
- コンシェルジュ
- ラウンジ
- 耐震・免震
- 建物
- 閑静な住宅地、外壁タイル張り、分譲賃貸、エレベーター、24時間ゴミ出し可、宅配ボックス、敷地内ごみ置き場、駐輪場
- セキュリティ
- オートロック
- その他の特徴
- LDK12畳以上、即入居可、ペット相談、楽器相談、敷金1ヶ月、礼金1ヶ月、保証人不要、保証会社利用可、IT重説 対応物件、初期費用カード決済可、分割可
- 水回り
- システムキッチン、ガスコンロ対応、2口コンロ、グリル付、ディスポーザー、都市ガス、バストイレ別、脱衣所、追焚機能浴室、浴室乾燥機、温水洗浄便座、洗面所独立、洗面化粧台、給湯、シャワー
- 設備
- 24時間換気システム、床暖房、バルコニー、ルーフバルコニー、2面バルコニー、フローリング、全居室フローリング、室内洗濯置、クロゼット、クロゼット2ヶ所、シューズボックス、BS、光ファイバー、TVインターホン、エアコン2台
※駐輪場・バイク置き場・駐車場の空き状況についてはお問い合わせください。
※ペット飼育やSOHO・楽器利用の可否に関しては、建物の管理規約で可能になっていても、お部屋の所有者様によって禁止の場合もございますのでご注意下さい。
募集住戸
売出中 物件一覧
只今、売出中の物件はありません。
マップ
周辺施設

新宿区立 落合第二小学校

中野区立第三中学校

ゲオ小滝橋店

東京母子愛育会保育園

社会保険中央総合病院

東中野郵便局

上落合 真クリニック

新宿区立大久保図書館

みずほ銀行 東中野駅東口出張所

ポニークリーニング小滝橋店
新着情報NEWS & TOPICS
- 2025.12.12お知らせ
【本郷三丁目駅徒歩4分!ルフォンプログレ本郷三丁目の賃貸募集開始しました!】本郷三丁目駅徒歩 徒歩4分 ...
- 2025.11.04お知らせ
【広尾駅徒歩8分!アクシア広尾1LDKの賃貸募集開始しました!】広尾駅徒歩 徒歩8分 住環境良好の分譲マ...
- 2025.08.12お知らせ
【夏季休業のお知らせ】平素は格別のお引き立てを賜り厚く御礼申し上げます。 弊社のGWの休業日につきまし...
- 2025.07.22お知らせ
【新宿の不動産売却に強い会社とは?】新宿で不動産売却を依頼するならどこにお願いすればいいの?の疑問に対し...
- 2025.07.16お知らせ
【人気の管理物件募集のご案内】水道橋駅 徒歩4分 2013年04月完成のマンション ステージファースト...





