アルテシモリブラ / 5階 502 1K
東京都新宿区箪笥町 / 牛込神楽坂駅
ペット可
成約済
- 賃料
- -
- 管理費 / 共益費
- - / -
- 専有面積
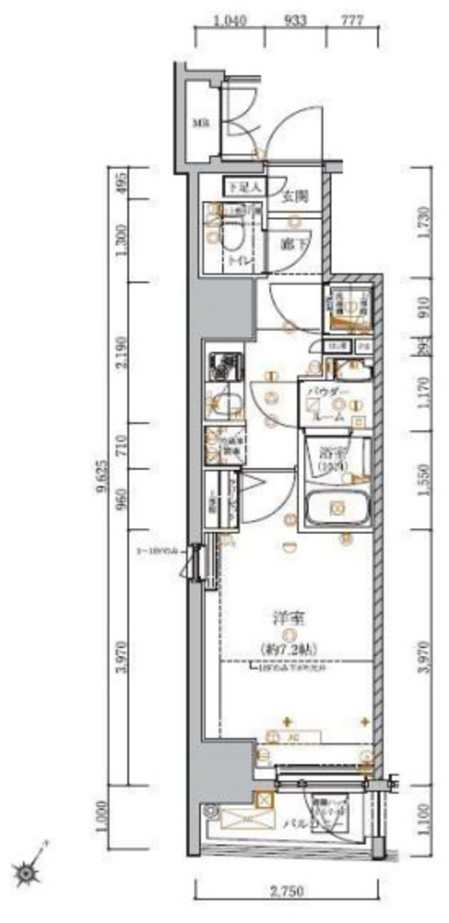
- 25.12m2
- 間取り
- 1K
- 方角
- 南東
- 敷金
- -
- 礼金
- -
- 権利金
- -
パノラマ画像
当該建物内の部屋の一例となり、表示されている部屋が既に成約済みの場合もございます。
部屋情報
賃貸
情報更新日:2025年01月29日 次回更新予定日:2025年02月12日
- 階数
- 5階
- 間取り / 向き
- 1K / 南東
- 専有面積
- 25.12㎡ (7.6坪)
- 間取り詳細
- 洋室7.2K
- 敷金 / 礼金
- -
- 賃料
- -
- 管理費 / 共益費
- - / -
- 敷引 / 償却
- - / -
- 契約形態
- 普通借家
- 保証金 / 権利金
- - / -
- 契約期間(期日)
- 2年
- 敷金積み増し
- -
- 更新料
- -
- 取引形態
- 仲介
- 現況
- -
- 入居時期
- -
- 保証会社
- 必加入 初回保証料/月額総賃料等の50% 月額保証料/800円
- その他月額費用
- -
- その他初期費用
- -
- 備考
- -
建物情報
- 住所
- 東京都新宿区箪笥町29-1
- 最寄駅
- 都営大江戸線 牛込神楽坂駅 徒歩2分
東京メトロ東西線 神楽坂駅 徒歩7分
東京メトロ有楽町線 市ケ谷駅 徒歩11分 - 階数
- 地上11階
- 構造
- 鉄筋コンクリート(RC)
- 総戸数
- 29 戸
- 駐車場
- - 賃料:- 円/月
- 竣工
- 2020年06月
- 敷地権利
- -
- 施工業者
- 分譲会社
- 管理会社
- 建物設備・施設
- 2駅利用可、2沿線利用可、駅徒歩5分以内、エレベーター、24時間ゴミ出し可、宅配ボックス、敷地内ごみ置き場、駐輪場、オートロック、防犯カメラ、BS、CS、光ファイバー
- 通学区域小学校
- 愛日小学校(約130m)
物件設備
- ペット可
- 楽器可
- スポーツジム
- 駐車場
- 24時間管理
- オートロック
- 宅配ボックス
- コンシェルジュ
- ラウンジ
- 耐震・免震
- 建物
- 2駅利用可、2沿線利用可、駅徒歩5分以内、エレベーター、24時間ゴミ出し可、宅配ボックス、敷地内ごみ置き場、駐輪場
- 設備
- 南向き、東南向き、角住戸、2面採光、24時間換気システム、バルコニー、フローリング、室内洗濯置、クロゼット、シューズボックス、BS、CS、ネット使用料不要、光ファイバー、TVインターホン、エアコン
- セキュリティ
- オートロック、防犯カメラ
- 水回り
- システムキッチン、ガスコンロ対応、2口コンロ、都市ガス、バストイレ別、脱衣所、浴室乾燥機、温水洗浄便座、洗面所独立、洗面化粧台、給湯、シャワー
- その他の特徴
- ペット相談、敷金不要、礼金1ヶ月、保証人不要、保証会社利用可、保証金不要、IT重説 対応物件、初期費用カード決済可、分割可
※駐輪場・バイク置き場・駐車場の空き状況についてはお問い合わせください。
※ペット飼育やSOHO・楽器利用の可否に関しては、建物の管理規約で可能になっていても、お部屋の所有者様によって禁止の場合もございますのでご注意下さい。
募集住戸
募集中 物件一覧
只今、募集中の物件はありません。
売出中 物件一覧
只今、売出中の物件はありません。
マップ
周辺施設

セントラルプラザRAMLA

THE100STORES 100円ショップ

セブンイレブン牛込北町

ミネドラッグ 牛込柳町店

東京厚生年金病院

JCHO東京新宿メディカルセンター

牛込警察署

牛込消防署

東京理科大学 神楽坂キャンパス

法政大学大学院
新着情報NEWS & TOPICS
- 2025.12.12お知らせ
【本郷三丁目駅徒歩4分!ルフォンプログレ本郷三丁目の賃貸募集開始しました!】本郷三丁目駅徒歩 徒歩4分 ...
- 2025.11.04お知らせ
【広尾駅徒歩8分!アクシア広尾1LDKの賃貸募集開始しました!】広尾駅徒歩 徒歩8分 住環境良好の分譲マ...
- 2025.08.12お知らせ
【夏季休業のお知らせ】平素は格別のお引き立てを賜り厚く御礼申し上げます。 弊社のGWの休業日につきまし...
- 2025.07.22お知らせ
【新宿の不動産売却に強い会社とは?】新宿で不動産売却を依頼するならどこにお願いすればいいの?の疑問に対し...
- 2025.07.16お知らせ
【人気の管理物件募集のご案内】水道橋駅 徒歩4分 2013年04月完成のマンション ステージファースト...






































