小伝馬町駅の賃貸マンション・アパート・戸建て・住宅・物件
小伝馬町駅の賃貸マンション・アパート・戸建て・住宅・物件情報を掲載しております。
検索結果:8棟17部屋
並び替え
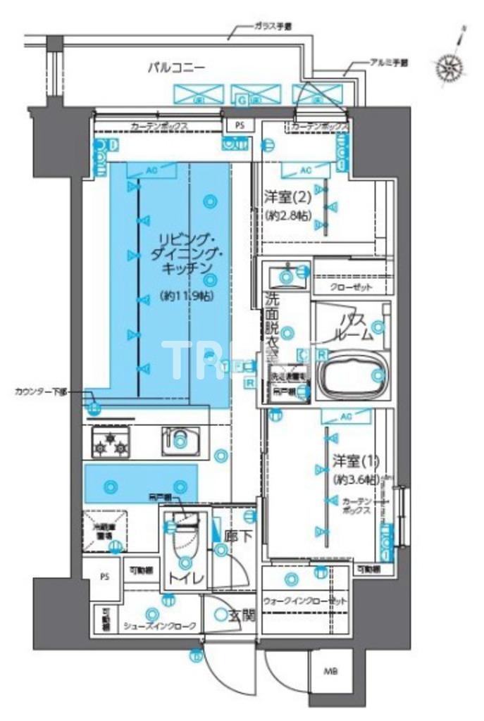
パークアクシス小伝馬町東京都千代田区岩本町1丁目
小伝馬町駅 徒歩3分募集中一覧5件
マンションN35EAST東京都千代田区岩本町2丁目
小伝馬町駅 徒歩4分募集中一覧1件
プラウドフラット東神田東京都千代田区東神田1丁目
馬喰町駅 徒歩3分募集中一覧2件
ザパークワンズ神田東京都千代田区神田西福田町
新日本橋駅 徒歩4分募集中一覧3件
マンションBPRレジデンス神田富山町東京都千代田区神田富山町
神田駅 徒歩3分募集中一覧1件
マンションルネサンスコート秋葉原東京都千代田区東神田1丁目
岩本町駅 徒歩4分募集中一覧1件
マンションガラステーション岩本町ノース東京都千代田区岩本町3丁目
岩本町駅 徒歩2分募集中一覧1件
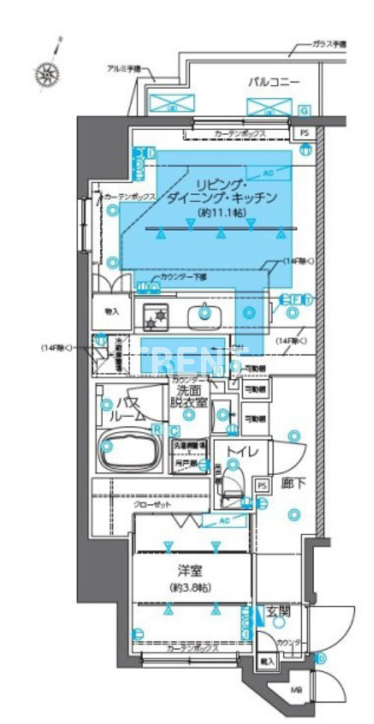
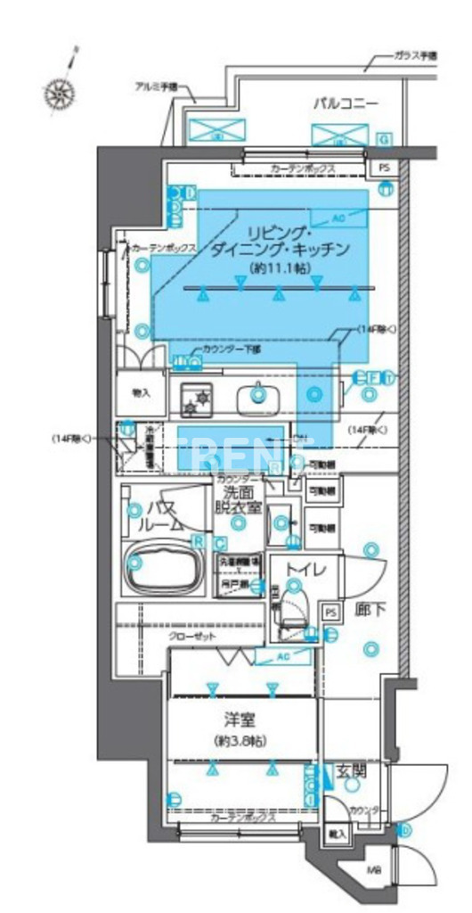
マンションズーム神田【ZOOM神田】東京都千代田区岩本町1丁目
小伝馬町駅 徒歩4分募集中一覧3件
新着情報NEWS & TOPICS
- 2025.09.12お知らせ
【方南町駅徒歩2分!マンション方南町1LDKの販売開始しました!】方南町駅徒歩 徒歩2分 2025年9月...
- 2025.08.12お知らせ
【夏季休業のお知らせ】平素は格別のお引き立てを賜り厚く御礼申し上げます。 弊社のGWの休業日につきまし...
- 2025.07.22お知らせ
【新宿の不動産売却に強い会社とは?】新宿で不動産売却を依頼するならどこにお願いすればいいの?の疑問に対し...
- 2025.07.16お知らせ
【人気の管理物件募集のご案内】水道橋駅 徒歩4分 2013年04月完成のマンション ステージファースト...
- 2025.06.02お知らせ
【人気物件のご案内】品川駅 徒歩10分 2008年04月完成のマンション シティタワー品川 築地...






























